VILLA1_NY
Rendering: CEBRA
Byggeriets CO2-aftryk
Se alle byggeriernes validerede LCA-beregninger samlet ét sted her
Om byggeriet
Vi ønsker at udvikle en bolig, der kan være med til at inspirere til nye måder at tænke bæredygtighed og livskvalitet i boligen på. En løsning med lavt klimaaftryk, hvor natur, æstetik og oplevet værdi går hånd i hånd.
Målet med eksempelbyggeriet er at designe, opføre og evaluere en helt eller delvist præfabrikeret bolig, Villa 1, med fokus på klimahensyn og fremtidens boligbehov. Boligen henvender sig til den stigende gruppe beboere, der har miljø og bæredygtighed som vigtige pejlemærker – og som samtidig efterspørger hjem, der kan måle sig med markedets øvrige boligtilbud.
Villa1 er i første omgang et eksempelhus, som opføres i Aarhus.
Kodeord for boligen er; mindre privat bolig - mere fællesskab, mindre plæne - mere natur, mindre cement - flere naturlige materialer.
Huset er designet med et modulært grid, der giver minimalt spild i byggeriet og god mulighed for at genbruge alle komponenter, hvis huset adskilles i fremtiden.
Foreløbige materialer: Skruefundamenter, terrændæk i trækassetter, trækonstruktion med træfiberisolering, træfacadebeklædning, ventilationsvinduer, stålpladetag, solfanger og solceller.
Eksempelbyggeriet opføres som en selvstændig bolig.
Projektnavn: VILLA1
Beliggenhed: Århus
Bygningstype: Enfamiliehus
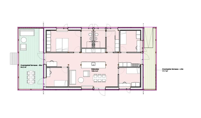
Omfang: 140 m² + ca. 60 m² udeareal
Antal etager: 1
Antal boligenheder: 1
Antal beboere: 4
Beboersammensætning:
To voksne og to børn
Bygherre: HusCompagniet
Arkitekt: CEBRA
Landskab: CEBRA
Ingeniør: Søren Jensen
Primært udviklingsfokus:
Lavt CO2 og skalerbarhed, masseproduktion
Tegninger
Download nyeste tegninger her: Situationsplan, Stueplan, Tagplan, Facade – Nord og Syd, Facade – Øst og Vest, Arealplan, Tvær- og Længdesnit